CandeurTwins
ThelandmarkinMiyapur’sHorizon
It is often said that the sky is the limit, but Candeur Twins Miyapur, from one of the top builders in Miyapur, lets you own it. These Luxury Apartments in Miyapur elevate your lifestyle with premium amenities and thoughtful design, setting a new benchmark in elevated living. Candeur Twins Miyapur offers a sky-high life with expansive views and contemporary design that blends tranquility with convenience. This Luxury gated communities in Miyapur feature 3 BHK apartments designed for natural light, airflow, and comfort, making elegance a part of everyday living.
TS RERA No. P02400005082
Permit No. 3072/GHMC/SLP/2022-BP
Website https://rera.telangana.gov.in/

ExperienceTwinsStepInside theGrandeur
ALegacyDefinedbyMilestones
47 Floors
Rising majestically above the city, these towers redefine the skyline. Every floor offers panoramic views and a sense of unparalleled luxury.
Exclusive 3 BHK Community
Designed for discerning residents who value privacy and elegance. A harmonious blend of modern comforts and sophisticated living awaits you here.
1591 Sq.ft to 2060 Sq.ft.
Generous layouts that embrace space, light, and freedom. Each home is crafted for comfort, style, and functional living.
Iconic Twin Towers
A striking landmark that captures the imagination and attention. Twin marvels of architecture, symbolizing prestige and timeless design.
G+7 Floors Clubhouse
An expansive sanctuary for leisure, fitness, and social gatherings. Every amenity is thoughtfully designed to elevate your everyday experiences.
Own Your Twins. Experience a private preview like no other
SpacesDesignedforLeisureandWell-being
Candeur Twins presents thoughtfully designed 3 BHK apartments that balance comfort and modern style. The community features a 7-level clubhouse, offering spaces for leisure, wellness, and recreation. Each floor of the clubhouse delivers a curated experience to enrich everyday living. Residents can unwind at the rooftop terrace pool while enjoying breathtaking skyline views. The design seamlessly blends functionality with elegance, creating a harmonious living environment. Every detail of the project is crafted to elevate lifestyle and convenience. Candeur Twins stands as a statement of refined, contemporary living for its residents.

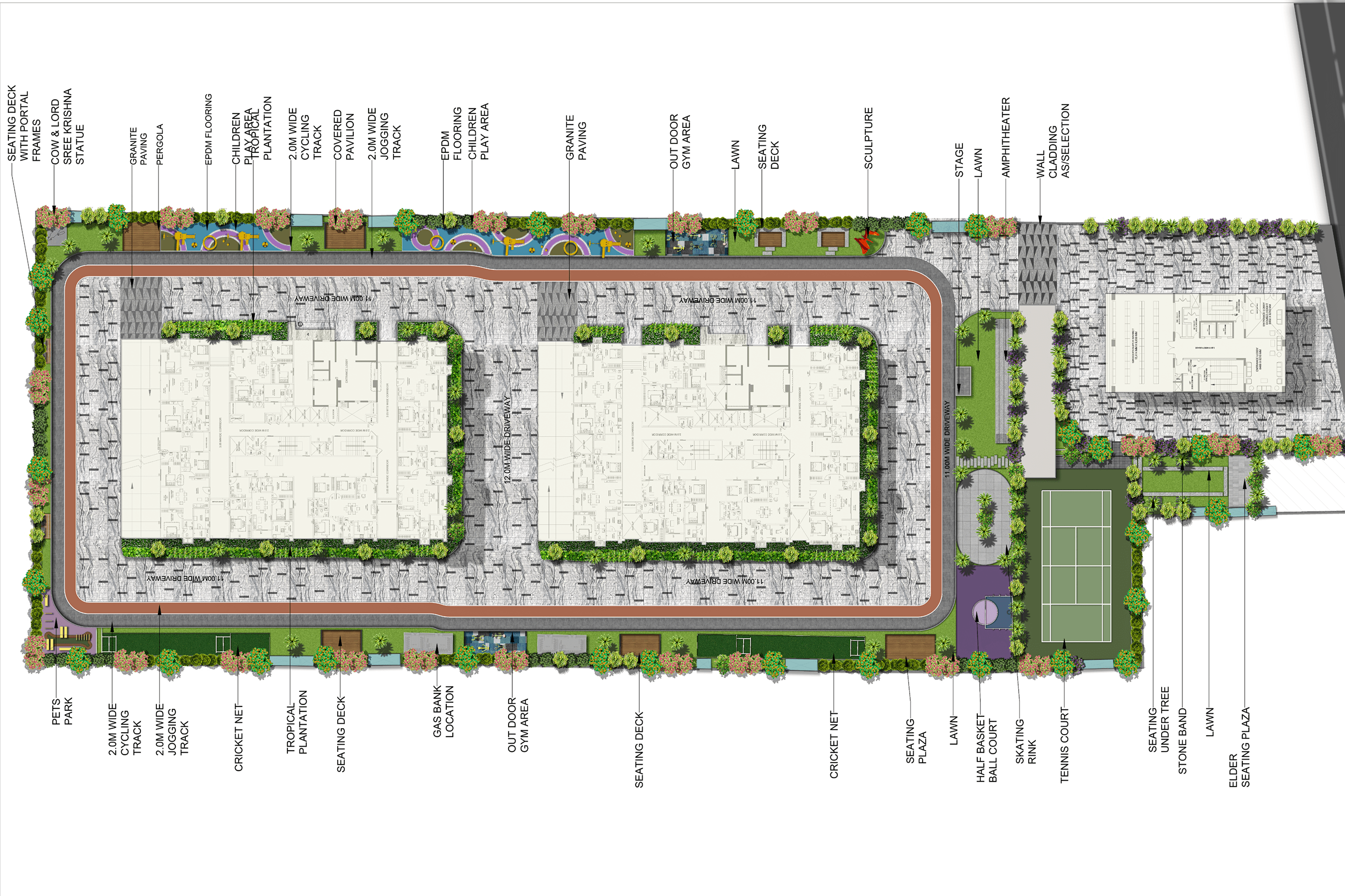
TheEntireVision,ClearlyLaidOut
Candeur Twins in Miyapur rises as a twin-tower high-rise on a perfectly planned 3.5-acre layout. The community features landscaped greens, seamless pathways, and state-of-the-art outdoor amenities. It offers serene pockets of nature alongside vibrant community zones for balanced living. Designed for comfort and sophistication, it promises privacy without compromising connectivity. Ideal for discerning buyers, it presents luxury apartments in Miyapur crafted by top builders.
- Grand Entry Portal
- Security Cabin
- 11.0 M Wide Driveway
- Drop-off Zones

TailoredSpacesforModernLiving
Candeur Twins offers luxury 3 BHK apartments in Miyapur, combining modern design with stunning city and skyline views. These Luxury Apartments in Miyapur stand out among the finest gated communities.
AGlimpseIntoRefinedLiving
The gallery highlights the spacious layouts of 3 BHK apartments and the seamless blend of luxury and functionality. Each image reflects the premium lifestyle that makes Luxury Apartments in Miyapur highly sought after by discerning homeowners.
ClosetoWhatMattersMost
Candeur Twins in Miyapur is ideally located, offering easy access to commercial hubs, schools, and healthcare facilities. The project features 3 BHK apartments in Miyapur within a luxury gated community, combining modern living with privacy and security. As one of the top builders in Miyapur, Candeur Group ensures quality, sophistication, and attention to detail, making these luxury apartments in Miyapur a coveted choice for families and professionals.
- Sentia Global School - 2 KM
- Kennedy Global School - 4 KM
- Silver Oaks - 5 KM
- Creek International School - 5 KM
- Ganges Valley School - 5 KM
- Oakridge - 10 KM
- Delhi Public School - 10 KM
TwinsUncompromisingSpecifications
- Aluminium Form work
- Solid or AAC Block work in the designated areas

FAQ’s
The design of Candeur Twins carefully considers light, ventilation, and open spaces, creating a harmonious balance with the surrounding neighborhood and landscape.

GetinTouch
Experience Center at Miyapur













































